- Haberler
- Yerel Yönetim
- Kayseri'deki o mezarlıkta bakın ne tespit edildi? Bölge Kurulu harekete geçti
Kayseri'deki o mezarlıkta bakın ne tespit edildi? Bölge Kurulu harekete geçti
Kayseri Büyükşehir Belediye Meclisi gündeminde bulunan konuları görüşüp karara bağlamak için bugün toplanacak. Peki gündemde hangi maddeler var? Detaylar Kayseri Olay'da.
Kayseri Büyükşehir Belediye Meclisi bugün Ocak ayı ikinci toplantısını yapacak. Meclis gündeminde 19 madde var. Ağırlıklı olarak imar konularının görüşülerek, karara bağlanacağı Meclis'te Kültür Varlıkları ve Müzeler Genel Müdürlüğü Kayseri Kültür Varlıklarını Koruma Bölge Kurulu Müdürlüğünün talebi görüşülecek.
Komisyon'dan oy birliği çıktı
Buna göre Melikgazi İlçesi, Kayabağ Mahallesinde kadastro harici alanda tespit edilen ‘Haşker Mevkii Kaya Oyma Mekanlar ve Nekropol Alanı’ olarak adlandırılan alanın 1. derece arkeolojik sit alanı olarak planlanması konusunda İmar ve Bayındırlık Komisyonu raporu görüşülecek. Rapor komisyonda oy birliği ile kabul edildi. Komisyon tarım alanı olarak planlı yerin, 1. derece arkeolojik sit alanı olarak planlanması yönündeki imar plan tadilatı talebini oy birliği ile kabul etti.
Mezarlıkta tespit edildi
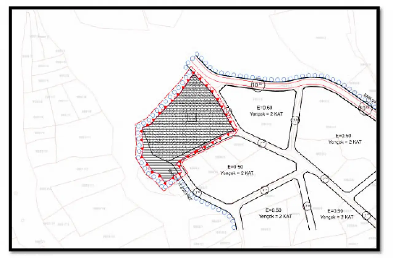
Büyükşehir Belediye Meclisi'nde ayrıca Melikgazi Belediye Meclisinin 05.01.2026 tarih, 6 sayılı kararının incelenmesi talebi hususunda hazırlanan İmar ve Bayındırlık Komisyon Raporu da görüşülecek. İmar ve Bayındırlık Komisyonu tarafından yapılan tapılan tetkik ve inceleme sonucunda mülkiyeti Melikgazi Belediyesine ait, Güzelköy Mahallesi, 9890 ada, 2 parsel numaralı taşınmazın 1/1000 ölçekli uygulama imar planında mezarlık alanı olarak planlı olduğu, ilgili mezarlığın, Kayseri Kültür Varlıkları Koruma Bölge Kurulunun 23 Ekim 2025 tarih, 9185 sayılı kararı ile 2863 sayılı yasa kapsamına giren özellikler taşıdığı tespit edildi.
Konu Büyükşehir Meclisi'nde görüşülecek
Kurul kararının ardından söz konusu alanın korunması gerekli taşınmaz kültür varlığı olarak tescil edilmesi, yapı grubunun 1. grup olarak ve korunma alanı sınırının 1/1000 ölçekli uygulama imar planına işlenmesi ve mezarlık alanı olarak planlanması talebi gündeme geldi. Melikgazi Belediyesi'nin bu yöndeki talebi komisyonda oy birliği ile kabul edildi. Konunun bu şekilde Meclis'ten de geçmesi bekleniyor.
2863 sayılı yasa neyi içeriyor?
Kültür ve Tabiat Varlıklarını Koruma Kanunu kapsamında 2863 sayılı yasanın amacı korunması gerekli taşınır ve taşınmaz kültür ve tabiat varlıkları ile ilgili tanımları belirlemek, yapılacak işlem ve faaliyetleri düzenlemek, bu konuda gerekli ilke ve uygulama kararlarını alacak teşkilatın kuruluş ve görevlerini tespit etmek olarak ifade ediliyor.
Yasada tanımlar ise şu şekilde: Kültür varlıkları; tarih öncesi ve tarihi devirlere ait bilim, kültür, din ve güzel sanatlarla ilgili bulunan veya tarih öncesi ya da tarihi devirlerde sosyal yaşama konu olmuş bilimsel ve kültürel açıdan özgün değer taşıyan yer üstünde, yer altında veya su altındaki bütün taşınır ve taşınmaz varlıklardır.
"Tabiat varlıkları"; jeolojik devirlerle, tarih öncesi ve tarihi devirlere ait olup ender bulunmaları veya özellikleri ve güzellikleri bakımından korunması gerekli, yer üstünde, yer altında veya su altında bulunan değerlerdir.
"Sit"; tarih öncesinden günümüze kadar gelen çeşitli medeniyetlerin ürünü olup, yaşadıkları devirlerin sosyal, ekonomik, mimari ve benzeri özelliklerini yansıtan kent ve kent kalıntıları, kültür varlıklarının yoğun olarak bulunduğu sosyal yaşama konu olmuş veya önemli tarihi hadiselerin cereyan ettiği yerler ve tespiti yapılmış tabiat özellikleri ile korunması gerekli alanlardır. "Koruma"; ve "Korunma"; taşınmaz kültür ve tabiat varlıklarında muhafaza, bakım, onarım, restorasyon, fonksiyon değiştirme işlemleri; taşınır kültür varlıklarında ise muhafaza, bakım, onarım ve restorasyon işleridir.
"Korunma alanı"; taşınmaz kültür ve tabiat varlıklarının muhafazaları veya tarihi çevre içinde korunmalarında etkinlik taşıyan korunması zorunlu olan alandır.



